Nội dung bài viết
Tờ khai hải quan là gì? Vì sao các doanh nghiệp xuất nhập khẩu nên thuê dịch vụ khai báo hải quan. Trong bài viết này Vạn Hải sẽ giải đáp những thắc mắc trên, đồng thời hướng dẫn điền nội dung tờ khai hải quan xuất khẩu cho người mới bắt đầu. Cùng tìm hiểu ngay nhé!
Tờ khai hải quan là một loại văn bản mà ở đó chủ hàng phải kê khai thông tin về hàng hóa đó để lực lượng hải quan kiểm tra khi hàng hóa được xuất nhập khẩu vào một quốc gia. Thuật ngữ “tờ khai hải quan” trong tiếng anh là “Customs Declaration”
Tờ khai hải quan là một phần bắt buộc phải có trong quá trình xuất nhập khẩu hàng hóa. Nếu không có tờ khai hải quan hoặc kê khai không chính xác, tất cả các hoạt động liên quan đến xuất nhập khẩu của bạn có thể bị đình chỉ hoặc gặp các vấn đề pháp lý nghiêm trọng. Vì vậy, việc điền tờ khai hải quan một cách chính xác và đầy đủ là điều hết sức quan trọng.
Khi bạn điền tờ khai hải quan, bạn cần cung cấp một số thông tin quan trọng về hàng hóa, bao gồm:
Ngoài các thông tin về hàng hóa, người kê khai còn phải cung cấp các thông tin khác như: Mã số thuế (MST) của người xuất/nhập khẩu, MST của người được ủy quyền (nếu có), MST đại lý hải quan.
Người kê khai tờ khai hải quan phải cam kết và chịu trách nhiệm về tính chính xác của thông tin đã kê khai. Họ phải ký tên, ghi rõ họ tên và đánh dấu để xác nhận cam kết này.
Việc nắm rõ tờ khai hải quan và thực hiện nó đúng cách là một phần quan trọng của kinh doanh quốc tế và xuất nhập khẩu hàng hóa. Nếu bạn đang gặp khó khăn trong việc điền tờ khai hải quan, đừng lo lắng, trong phần này chúng ta sẽ cùng đi chi tiết từng phần nội dung cần phải điền trên tờ khai hải quan điện tử mẫu mới nhất hiện nay:
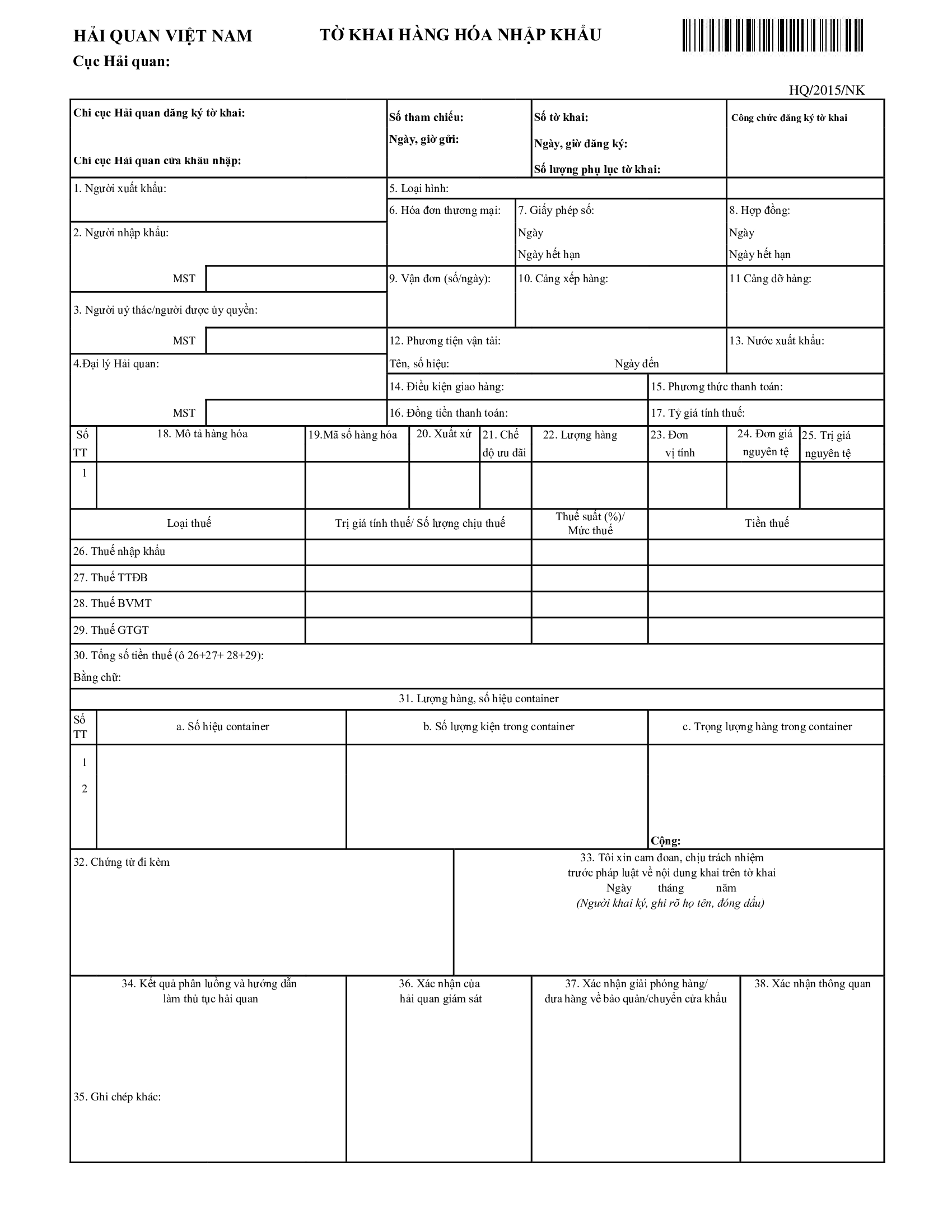
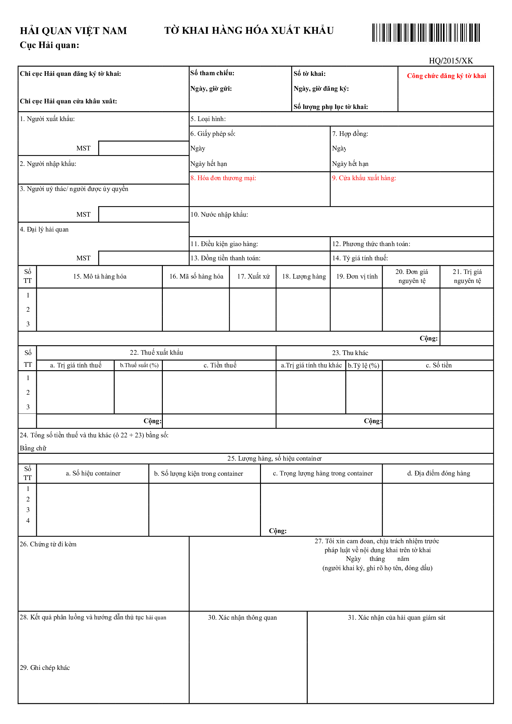
Ô số 1 “Người xuất khẩu”: Tên đầy đủ, địa chỉ, SDT, số Fax và MST của bên bán được thể hiện trên hợp đồng mua bán hàng hoá.
Ô số 2 “Người nhập khẩu”: Tên đầy đủ, địa chỉ, SDT, số Fax và MST (nếu có) bên mua.
Ô số 3 “Người uỷ thác/ người được uỷ quyền”: Tên đầy đủ, địa chỉ, SDT, số Fax và MST của bên uỷ thác cho người xuất khẩu. Hoặc tên đầy đủ, địa chỉ, SDT, số Fax và MST của bên được uỷ quyền để khai báo hải quan.
Ô số 4 “Đại lý hải quan”: Tên đầy đủ, địa chỉ, SDT, số fax và MST của Đại lý hải quan; Số, ngày hợp đồng đại lý hải quan
Ô số 5 “Loại hình”: Chọn mã loại hình phù hợp khi làm tờ khai hải quan điện tử. Trường hơp khai thủ công người khai loại hình xuất khẩu tương ứng.
Ô số 6 “Giấy phép/Ngày/Ngày hết hạn”: Điền ngày/tháng/năm của giấy phép của các cơ quan quản lý chuyên ngành đối với hàng hóa xuất khẩu và ngày/tháng/năm hết hạn của giấy phép.
Ô số 7 “Hợp đồng/Ngày/Ngày hết hạn”: Điền ngày/tháng/năm ký hợp đồng và ngày/tháng/năm hết hạn hợp đồng hoặc phụ lục hợp đồng (nếu có).
Ô số 8 “Hoá đơn thương mại”: Điền chính xác ngày/tháng/năm của hóa đơn thương mại.
Ô số 9 “Cửa khẩu xuất hàng”: Điền tên cảng, địa điểm (đã thoả thuận trong hợp đồng thương mại), nơi mà hàng hoá được sắp xếp lên phương tiện vận tải để xuất khẩu.
Ô số 10 “Nước nhập khẩu”: Điền tên quốc gia, vùng lãnh thổ của điểm đến cuối cùng xác định ở thời điểm hàng hóa xuất khẩu, không tính các quốc gia, vùng lãnh thổ mà hàng hóa đó phải quá cảnh. Áp dụng mã quốc gia, vùng lãnh thổ cấp ISO 3166.
Ô số 11 “Điều kiện giao hàng”: Ghi rõ điều kiện giao hàng đã được thoả thuận trong hợp đồng thương mại.
Ô số 12 “Phương thức thanh toán”: Ghi rõ phương thức thanh toán đã được thoả thuận trong hợp đồng thương mại.
Ô số 13″Đồng tiền thanh toán”: Mã tiền tệ được dùng để thanh toán đã được thoả thuận trong hợp đồng. Áp dụng mã tiền tệ phù hợp với ISO 4217.
Ô số 14 “Tỷ giá tính thuế”: Tỷ giá giữa đơn vị nguyên tệ và tiền Việt Nam, được áp dụng để tính thuế bằng đồng Việt Nam (theo quy định tại thời điểm đăng ký tờ khai hải quan).
Ô số 15 “Mô tả hàng hóa”: Tên hàng hóa, quy cách phẩm chất của hàng hoá theo hợp đồng thương mại và tài liệu khác liên quan đến lô hàng. Nếu lô hàng có số mặt hàng từ 4 trở lên thì ghi vào tiêu thức này như sau:
* Nếu lô hàng áp một mã số nhưng bên trong lô hàng chứa nhiều chi tiết hoặc nhiều mặt hàng khác nhau (ví dụ: thiết bị toàn bộ, thiết bị đồng bộ) thì doanh nghiệp có thể ghi tên gọi chung cho lô hàng trên tờ khai và được phép lập bản kê chi tiết (không phải khai vào phụ lục).
Ô số 16 “Mã số hàng hoá”: Ghi mã số phân loại hàng hóa theo Biểu thuế xuất khẩu và Biểu thuế nhập khẩu ưu đãi do Bộ Tài chính ban hành. Nếu lô hàng có từ 4 mặt hàng trở lên thì ghi ô này như sau:
Ô số 17 “Xuất xứ”: Tên quốc gia, vùng lãnh thổ nơi chế tạo/sản xuất ra hàng hoá (dựa trên giấy chứng nhận xuất xứ hoặc những tài liệu liên quan khác). Áp dụng mã quốc gia quy định trong ISO. (Nếu lô hàng có từ 4 mặt hàng trở lên thì ghi tương tự như ô số 16)
Ô số 18 “Lượng hàng”: Số lượng, khối lượng hoặc trọng lượng từng mặt hàng trong lô hàng thuộc tờ khai hải quan đang khai báo phù hợp với đơn vị tính tại ô số 19. (Nếu lô hàng có từ 4 mặt hàng trở lên thì ghi tương tự ô số 16).
Ô số 19 “Đơn vị tính”: Tên đơn vị tính từng mặt hàng theo quy định của Bộ Tài chính tại Biểu thuế xuất khẩu và Biểu thuế nhập khẩu ưu đãi. (Nếu lô hàng có từ 4 mặt hàng trở lên thì ghi tương tự ô 16.)
Ô số 20 “Đơn giá nguyên tệ”: Giá một đơn vị hàng hoá bằng loại tiền tệ như thoả thuận trong hợp đồng, hoá đơn thương mại, L/C hoặc những tài liệu khác liên quan đến lô hàng. (Nếu lô hàng có từ 4 mặt hàng trở lên thì cách ghi tương tự tại ô 16)
Ô số 21 “Trị giá nguyên tệ:” Trị giá nguyên tệ của từng loại mặt hàng = Lượng hàng x Đơn giá. Nếu lô hàng có từ 4 mặt hàng trở lên thì điền vào ô này như sau:
Ô số 22 “Thuế xuất khẩu”:
Nếu lô hàng có từ 4 mặt hàng trở lên thì cách ghi vào ô này như sau:
Ô số 23 “Thu khác”:
Nếu lô hàng có từ 4 mặt hàng trở lên thì ghi tương tự ô số 22.
Ô số 24 “Tổng số tiền thuế và thu khác (ô 22 + 23)”: Tổng số tiền thuế xuất khẩu, thu khác, bằng số và bằng chữ.
Ô số 25 “Lượng hàng, số hiệu container”: Điền đầy đủ các thông tin sau:
Nếu từ 4 container trở lên thì những thông tin này phải được ghi cụ thể trên phụ lục tờ khai hải quan, không ghi trên tờ khai.
Ô số 26 “Chứng từ đi kèm”: Liệt kê những chứng từ đi kèm tờ khai hàng hoá xuất khẩu.
Ô số 27: Ghi rõ ngày/tháng/năm khai báo, đồng thời người khai phải ký, ghi rõ họ tên và đóng dấu vào ô này.
Ô số 28 “Kết quả phân luồng và hướng dẫn làm thủ tục Hải quan”: Phần này sẽ được tự động điền nếu làm tờ khai điện tử. Ngược lại, nếu làm thủ công thì công chức tiếp nhận sẽ ghi lại kết quả từ hệ thống vào tờ khai.
Ô số 29 “Ghi chép khác”: Ô dành cho công chức hải quan để ghi chép những nội dung cần thiết mà không ghi được ở nơi khác như: số biên bản, số quyết định xử phạt, xử lý ….
Ô số 30 “Xác nhận đã thông quan”: Công chức đảm nhiệm xác nhận trên hệ thống điện tử hoặc trên tờ khai của doanh nghiệp đã in ra.
Ô số 31 “Xác nhận của hải quan giám sát”: Ghi chép của công chức hải quan chịu trách nhiệm giám sát hàng hoá xuất khẩu.
| Lỗi sai | Nguyên nhân | Cách khắc phục |
| Khai báo sai nhóm hoặc sai mã loại hình | Đối với những người mới bắt đầu khai báo thường dễ bị lỗi này vì không hiểu rõ mục đích của các nhóm loại hình và mã loại hình tương ứng. | Trước khi điền tờ khai, cần tìm hiểu kĩ mục đích kinh doanh xuất nhập khẩu của doanh nghiệp. Khi đã hiểu rõ mục đích đó, hãy chọn đúng nhóm và mã loại hình. Khai báo sai nhóm hoặc mã loại hình là một lỗi không được phép và có thể không được sửa chữa sau này. |
| Khai sai mã hiệu phương thức vận chuyển | Ngay cả những người có kinh nghiệm trong khai báo hải quan có thể mắc lỗi này. Lỗi này có thể xảy ra khi người điền thông tin sao chép từ tờ khai cũ nhưng quên cập nhật mã hiệu phương thức vận chuyển. | Khi khai sai mã hiệu phương thức vận chuyển sẽ không được phép khai bổ sung mà bắt buộc phải hủy tờ khai.
Hãy kiểm tra tất cả chứng từ để xác định chính xác mã hiệu phương thức vận chuyển và so sánh với thông tin đã khai báo trước khi nộp tờ khai chính thức. |
| Khai báo sai tên người nhập khẩu cho tờ khai xuất và sai tên người xuất khẩu cho tờ khai nhập | Khi có một bên thứ ba tham gia vào giao dịch mua bán, người điền thông tin có thể bị nhầm lẫn về thông tin người nhập khẩu và người xuất khẩu. | Để tránh lỗi này, người điền thông tin cần xác định rõ người nhập khẩu và người xuất khẩu trong giao dịch. |
| Khai báo sai số lượng kiện | Do sự đa dạng của hàng hóa và cách đóng gói, người điền thông tin có thể sai lầm khi khai báo số lượng kiện bên trong kiện hàng. | Khi điền tờ khai hải quan, chỉ cần khai báo số lượng kiện tổng cộng, không cần khai báo số lượng chi tiết bên trong kiện hàng. Chi tiết này đã được quản lý bằng số lượng riêng. |
| Khai báo sai mã hàng | Đối với các doanh nghiệp nhập khẩu miễn thuế, cần phải tạo mã cho nguyên liệu và sản phẩm để quản lý. Sai mã có thể xảy ra khi quản lý mã hàng không chính xác. | Hãy kiểm tra và cập nhật mã hàng đúng xác. |
Dựa theo quy định tại Điều 22 Thông tư số 38/2015/TT-BTC ngày 25/03/2015 của Bộ Tài chính (sửa đổi, bổ sung tại Thông tư số 39/2018/TT-BTC ngày 20/04/2018), có 4 trường hợp hủy tờ khai hải quan được quy định như sau:
a) Hết thời hạn 15 ngày kể từ ngày đăng ký tờ khai hải quan mà không thực hiện thủ tục
– Đối với hàng Nhập khẩu: Hàng hóa không đến cửa khẩu nhập.
– Đối với hàng Xuất khẩu:
b) Hàng hóa thuộc diện phải có giấy phép chuyên ngành nhưng không có giấy phép tại thời điểm đăng ký tờ khai.
Tờ khai hải quan đã được đăng ký nhưng chưa được thông quan do Hệ thống xử lý dữ liệu điện tử hải quan có sự cố và tờ khai hải quan giấy thay thế đã được thông quan hoặc giải phóng hàng hoặc đưa hàng về bảo quản.
Tờ khai hải quan đã đăng ký nhưng hàng hóa không đáp ứng các quy định về quản lý, kiểm tra chuyên ngành, sau khi xử lý vi phạm với hình thức phạt bổ sung là buộc phải tái xuất hoặc tiêu hủy.
Bao gồm các trường hợp sau:


Ngày nay, hầu hết các doanh nghiệp xuất nhập khẩu đều sử dụng dịch vụ khai thuê hải quan bởi vì những lợi ích như sau:
Tóm lại, tờ khai hải quan là một chứng từ bắt buộc phải có trong hoạt động xuất nhập khẩu. Các doanh nghiệp xuất nhập khẩu nên cân nhắc sử dụng các dịch vụ khai báo hải quan để mang lại hiệu quả tốt hơn, đảm bảo thời gian và tối ưu chi phí.

























